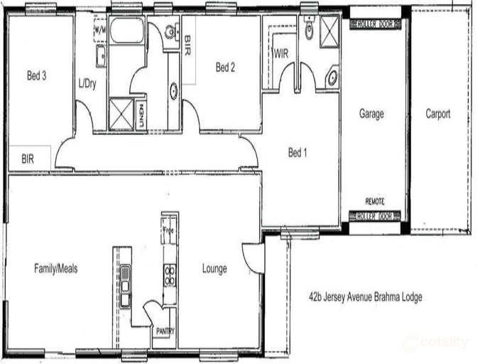
3-Bedroom Home in Brahma Lodge
* Available from 18/12/2025
* The property is Unfurnished
* Yes, you can pre-apply now!
* Bond- 4 weeks rent
Discover a blend of comfort and convenience in this three-bedroom, two-bathroom home. Perfectly designed for easy living, with practical spaces and contemporary finishes throughout, perfect for students and families.
Key Features:
– 3 Bed | 2 Bath | Carpark
– 3 well proportioned rooms with windows for ample sunlight
– Master bedroom with walk-in robe and ensuite
– Bedrooms 2 and 3 with built-in robes
– Open plan layout- kitchen, dining, and lounge with split-system air conditioning
– Modern kitchen with butlers pantry
– Appliances including 4-burner cooktop and oven
– Automatic garage roller door with access from both sides
– Additional open carport spaces
Conveniently located in close proximity to public transports, shopping facilities and recreational parks.















