Endless Potential on a Generous Block
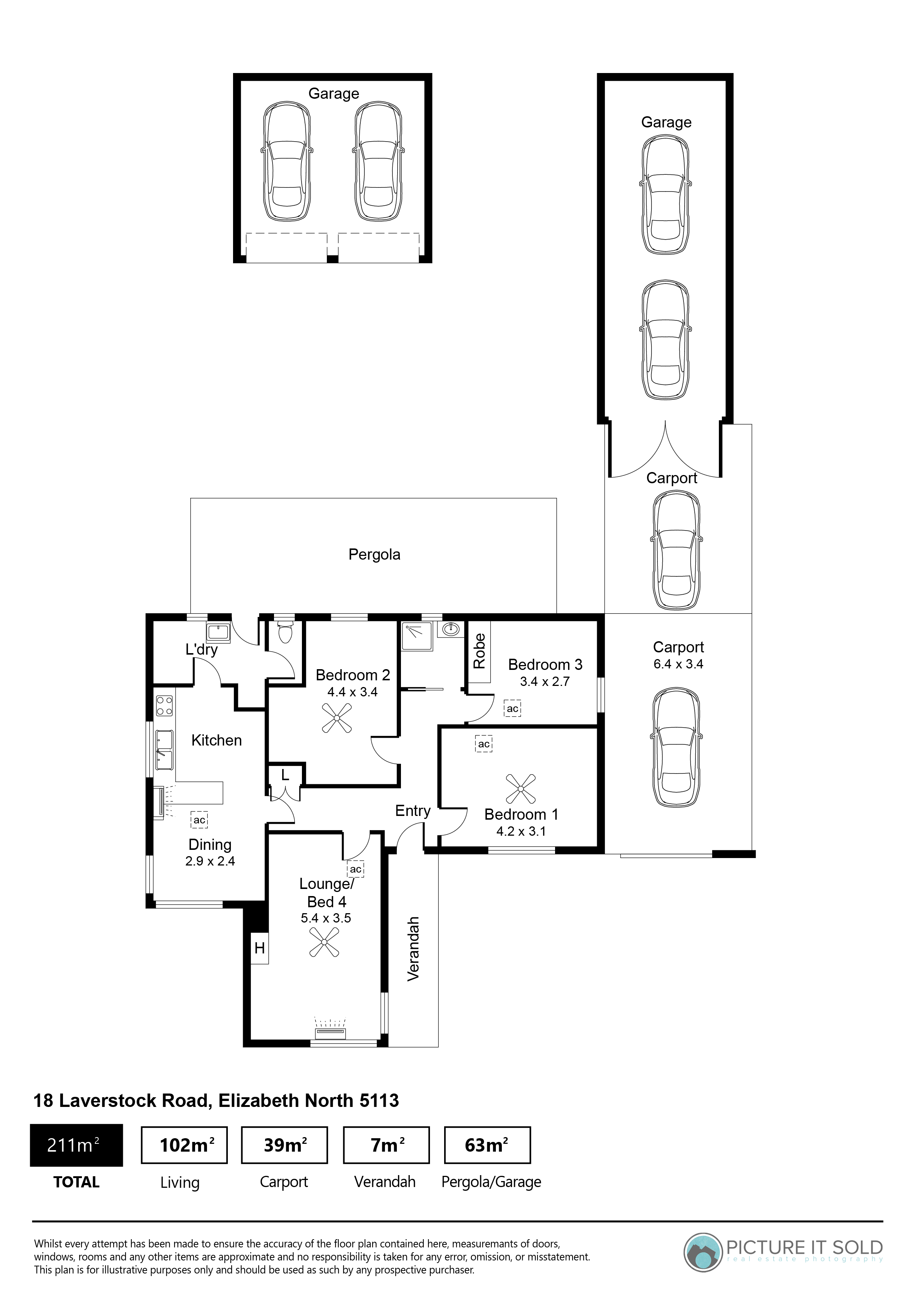
From its impressive wide frontage to the possibilities waiting inside, this house is a standout. With 3 bedrooms, 1 bathroom, and secure parking for 6 vehicles, it offers space, flexibility, and scope to explore. Set on a substantial 836 m² block with fully fenced yards, the property presents a rare opportunity for investors or developers, including potential for future subdivision (subject to council approval) in one of Playford’s steadily growing pockets.
Key Features:
– 3 Bed | 1 Bath | 2 Carport + 4 Garage + 2 Open Car Space
– Torrens Title detached home with brick façade and tiled roof.
– Three bedrooms with 2.6 m ceilings and ceiling fans
– Bedroom 4/Lounge with carpet, feature wall, gas heater, ducted evaporative AC, and ceiling fan.
– Open-plan kitchen/meals with stone benchtop, stainless steel 600 mm induction cooktop, Omega 600 mm oven, 600 mm glass canopy rangehood, raised breakfast bar, and split-system AC.
– Full-length pergola | fully fenced front and rear yards.
– Double tandem carport plus large garage/workshop with dual roller doors.
– Automatic sliding gate and secure frontage.
Additional Internal Features
2.76m ceilings throughout with laminated and carpet flooring in living areas and bedrooms. Ducted evaporative air conditioning, ceiling fans with lights (living, master, bedroom 2), split-system air conditioning to kitchen/meals area, and window air conditioning unit (living). Gas heater in lounge/bedroom 4. Curtains and sheer curtains, plus roller blinds, fitted throughout. Hallway chandelier. Laundry with linen cupboard, laundry sink, space for washer/dryer, and rear door access. Separate toilet.
Lifestyle Highlights:
Education Facilities:
Elizabeth North Primary School & Preschool – 600m | Playford College– 1.4km | Taparra Primary School– 1.6km
Recreation Facilities:
Burdell Reserve – 1.2km | Playford City Baseball Club– 1.3km | Argana Park– 1.4km | Uleybury Native Wildlife Sanctuary – 7.3km
Shopping Facilities:
Elizabeth North Shopping Centre– 280m | Munno Para Shopping– 1.7km | Elizabeth City Centre– 2.5km
Property Attributes:
– Local council: City of Playford
– Council rates: $482.50 per qtr
– Year built: 1960
– Zoning: Residential
– Construction: Double Brick
– Frontage: 18.3m
– Water rates: Supply Charge $82.30 per quarter
– Emergency services levy: $115.35 per year
– Gas Connection – Yes
*Disclaimer: All figures quoted are approximate. Buyers should conduct their own due diligence to verify accuracy. Onyx Realtors (Onyx Realtors Pty Ltd) does not guarantee the precision of these measurements. All development inquiries should be directed to the local government authority.















